Планируете открыть кафе? Или устроить столовую в бизнес-центре? А может, развернуть сеть ресторанов?
Я готов заняться проектированием уже сейчас!
1. Как правило, моя работа начинается со встречи с Заказчиком.
2. После обсуждения будущего заведения общественного питания я приступаю к замерам помещения, если таковое уже имеется.
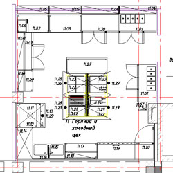
3. Далее начинается работа в AutoCAD - нарезка помещений согласно нормам проектирования и расстановка технологического оборудования.
4. После утверждения расстановки подготавливается спецификация оборудования.
5. Затем делаются чертежи привязок - точки подключения воды и канализации, точки вывода электрических кабелей и розеток, а также расположение вентиляционных зонтов.
При необходимости напишем пояснительную записку. Также распечатаем чертежи (вплоть до формата А0) и сброшюруем. При желании можно сделать 3D готовых помещений с расстановкой оборудования.
Сроки выполнения работ Вас приятно удивят. При наличии всех необходимых данных проект среднего ресторана можно выполнить с нуля до сброшюрованной копии всего за сутки.
Для полноценной работы у меня имеется своя база данных по оборудованию, которое можно приобрести в России, будь то отечественные или зарубежные производители.
У различных поставщиков профессионального кухонного оборудования цены могут отличаться, и, если Вы не определились ещё со своим поставщиком, то мы можем отправить спецификацию в несколько компаний,
и тогда, имея на руках несколько коммерческих предложений, Вам будет легче сделать свой выбор. |